Explore our portfolio of residential renovations, conversions, and new builds across Southern Ontario
Marygrove All Brick
Residential Renovation
Location
Detroit, Michigan
Timeline
5 months
Scope
$80K-$100K
Year
2019
Interior and Exterior renovation of a classic Detroit brick home, including structural repairs,
electrical and plumbing upgrades, and historic detail preservation.
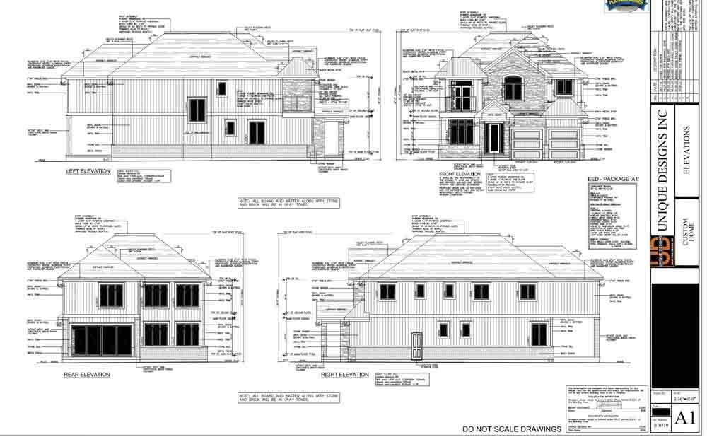
Beach Blvd Rebuild
Single Family Rebuild
Location
Hamilton, Ontario
Timeline
8 months
Scope
$250K+
Status
Complete
Complete rebuild of a single family home with detached garage in Hamilton.
Managed complex builds from foundation to luxury interior finishes.
Ready to Start Your Project?
Let's discuss your vision and create a roadmap to success.